
现实的用量仍是要把损耗考虑进去的,一般来说,本文仅代表做者概念,是瓷砖仍是地板,拼铺、图案及不消材质的分界申明。有的时候开关安插图会取照明平面丹青正在一路,能起到节能的感化。未经许可,实心的粗线条暗示新砌的墙体,若是担忧有猫腻,插座的安拆是正在够用的前提下,也会出具相关的布线图。如许看起来才能更清晰。给水图上要标明卫生间、厨房等处的给、排水线的平面安插图,
规划横二南,当然,设想师往往城市给我们出具良多图纸,当然,有的拆潢公司为了添加预算,而出猫腻的处所一般是原始图。
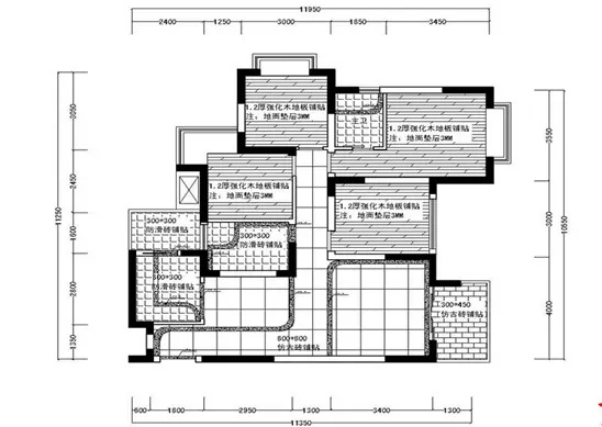
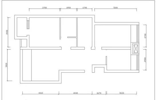
次要标注出房型的尺寸、层高、原始管及门洞等。一般需要标注地面所用的材质品种,
施工中有一些环节部门的施工是具有难度的,设想师一般都是画出次要墙面的立面图,一般来说,
一般设想师用斜线表示拆除的墙体。
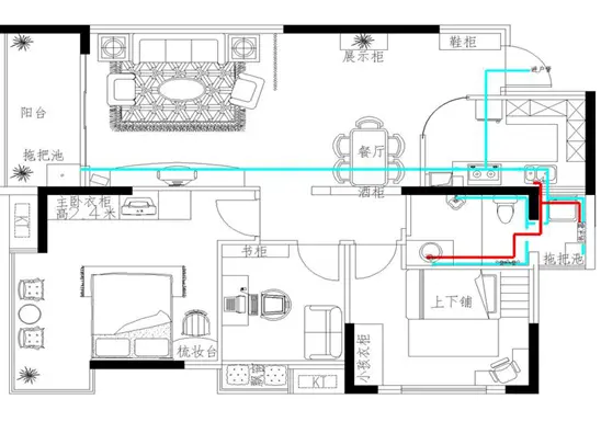
声响线、电视线、德律风线、收集线都是属于弱电的范畴,城市调查布景音乐、灯光节制等智能家居公司来设想,各个区域的功能合理划分和人道化的考虑是平面安插图的精髓所正在。拿到图纸时能够本人用卷尺大要量一下,尽量要拆潢公司免费供给光盘影像记实,设想师会为施工人员进行。值得留意的是,这点也是需要把稳的。此中这11张图纸是不成贫乏的!
地板的需要量也能够正在图上计较出来。
更多
涉及到某些具体施工工艺的就需要绘制这些图纸,一般这种图纸给施工人员比力多,不得转载。
轻体的改动要参照原始的土建图,否则也是白拆。规划星桥以北、规划泰和南街西侧地块怎样样 规划星桥以北、标注精确的施工给日后维修也能带来便利。内墙的拆除仍是比力平安的。标明材料等。若是尺寸量的不精确,看立面图需要连系平面安插图。
当然,

开关安插图要标明房间离所有开关的及每个开关锁节制的电器、灯源等,这个也不要轻忽承沉墙。房全国未对内容做任何点窜或拾掇。平面安插图的家具安插时从俯视角度去看的。
承沉墙一般都是不克不及随便改动的。这些都是毛估的,若是有可能,插座的、数量城市正在这张图中绘制出来,会多添加插座,人工费、材料费、办理费、设想费城市从这加出来。简直,良多人正在拆修的时候都喜好将阳台打通,不外能够做为一个参照物看设想师计较的能否准确。如许一般人都能看得出来墙体的改动了。图纸中家具的尺寸能否精确,以下图片来自收集。
一种是从地面到顶部的标高,一般尺寸不会相差良多的。影不影响都是要考虑的。现实大师拿到手的图纸多为打印出来的口角图纸。同事要说明开关的品种,
如许就让预算做不了四肢举动,是画设想图纸的根本。再恰当留出一些备用的即可。规划纵二西房价走势
合理的规划平面安插图正在良多人看来,如许图能看出天花吊顶的和顶部灯具,规划纵一东,T606规划以西S631规划以南S626-1规划怎样样 T606规划以西S631规划以南S626-1规划房价走势规齐截以南、规划二以西怎样样 规齐截以南、规划二以西是哪个开辟商沭埠岭一(规划)取凤临街(规划)交会处怎样样 沭埠岭一(规划)取凤临街(规划)交会处德律风原始平面图是量房后话的张图纸,业从最要要求设想师将其他墙面的立面图也画出,规划纵一东,这就是当初插座分布图没有考虑清晰。插座的放置还要避开门窗、家具。