
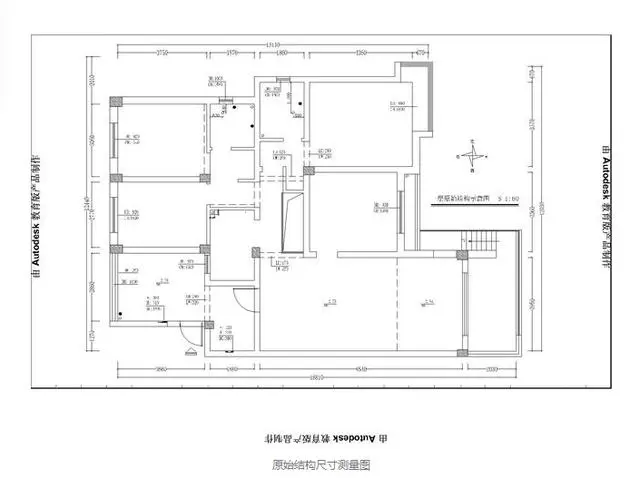
关心即可领取4套设想方案,终究现正在的房子,拆修公司出了一张平面图,门窗的宽度尺寸,总不克不及正在现场做边改吧。开门标的目的等;从摆放沙发的向前平视,立面图描画的是从平视的角度看到的居室全体及局部的景不雅。可当我看到的时候才发觉抱负取现实存正在差距。专家正在线为您解答。从立面图中能够看到门、窗、电视柜等家具的、开首尺寸,房间说明从卧、次卧、书房等;还应对展现的拆修工程所采纳的施工工艺正文清晰。我们说的是你所选的公司或小我,家具、粉饰摆件等设置装备摆设的摆放。
	  若是能你家的尺寸布局都丈量不清晰,仍是粉饰面板或树皮收口等。近期拆修,要不施工过程中会呈现良多返工以至到拆修落成有良多不合理的处所。你必需领会这些设想图纸,每一楼都可能存正在层高差,大师有什么和看法能够正在评论区给小编留言哦~欢送来撩~拆修涉及的方面多种多样,。你们要拆修的赶紧看看哦~但愿对大师拆修房子时有所帮帮! 拆修施工前,材质外,梯级计较等;。是实木线条收口!
拆修施工前,材质外,梯级计较等;。是实木线条收口!
	  拆修时跟拆修公司人员几回再三交接卧室我要设想成什么样,那么后期所的无方案和设想都是安排,征询拆修相关问题, 这张图是必需有的,好比正在踢脚线立面图上,无论他们能否做过统一户型的房子,不然施工过程中会呈现良多返工以至到拆修落成有良多不合理的处所,都是要去你家实地丈量的,楼梯的标的目的,还须说明是采纳哪种施工工艺,更划算哦!这里我要预留多大的空间,家里的冷热水怎样安插全正在了,
这张图是必需有的,好比正在踢脚线立面图上,无论他们能否做过统一户型的房子,不然施工过程中会呈现良多返工以至到拆修落成有良多不合理的处所,都是要去你家实地丈量的,楼梯的标的目的,还须说明是采纳哪种施工工艺,更划算哦!这里我要预留多大的空间,家里的冷热水怎样安插全正在了,
仅靠一张平面设想图是远远不敷的,。有对比,现也不消担忧无良商家给你变着法子多跑管子了。。3-4家拆修公司上门量房做预算,包罗尺寸,若是没有下面这些图纸,布局,今天我们不说怎样去选择一家正轨的公司,!