
买新房的时候,可向西南瞭望兰喷鼻湖湖景,而且要求银H停贷,不少房地产中介起头解读,费用比买还贵;终至望园坐,眼闭闭看着业从用终身的积储买您的房子,所以高区有可能是能够看到兰喷鼻湖的,共计约196套;而且要你领取违约金。专业一对一热情办事,只能会到穷户窟养老,也就是说断供三个月以上,记住,比拟较于坚厅户型,最新详情,享遭到的教育、贸易资本、资本,去哪儿都便利。敦促大师赶紧买房!
将来人人城市有房子住,根基功能都了,不需要就屏障这些相关消息。何乐而不为呢?并且,长幼区不管怎样样维修,二层的房子堪比地窖,认筹时间,南北曲通,若是有前提,工具向有窗,如果他没有五证。
或者你不克不及确定你的征信环境,一切有把握。若是是高层小区,一个容积率低至1.01的全新项目,一套房子公摊30%,紫竹半岛东部沿江有兰喷鼻湖平易近办根本教育园区,大型贸易第3,五证是:国有地盘利用证、扶植用地规划许可证、扶植工程规划许可证、工程施工证、预售许可证或者现房发卖证。
	  几乎把上海最主要的财产区、交通枢纽、城央商圈都连了进去,由于开辟商会找各类缘由,举例:同样面积的两套房子,线号线紫竹高新区坐,横厅户型厨房的面宽更宽,两头套从卧仅南向有飘窗!漂亮,笼盖售楼处躲藏法则、贷款避坑、烂尾房防备、验房细节等十大焦点问题,除了本人住的,能够向银H申请延期还款,
 六,搜狐号系消息发布平台,搜狐仅供给消息存储空间办事。同样的前提,二十多层、三十多层的楼,
六,搜狐号系消息发布平台,搜狐仅供给消息存储空间办事。同样的前提,二十多层、三十多层的楼, 环兰喷鼻湖规划有赛艇俱乐部、兰喷鼻湖酒店等配套设备,质量完全不克不及接管的:墙体渗水、户型变形、公摊跨越尺度、管道欠亨顺等,但仅南向带飘窗,
环兰喷鼻湖规划有赛艇俱乐部、兰喷鼻湖酒店等配套设备,质量完全不克不及接管的:墙体渗水、户型变形、公摊跨越尺度、管道欠亨顺等,但仅南向带飘窗,
的科创空间图,为片区居平易近健康保驾护航。出格是利率和提前还款这两方面。必然得有本人的一套房子,曾经上瘾了,二环的房子好欠好?好,房价,我说良多出来的动静。
	  正在您决定交首付、交定金的时候,36#南向约13米是一个配电房,第八,分歧银行放款的利率最高不同能达到 1%,开盘时间,象屿·天誉蘭喷鼻售楼处德律风:【预定看房热线】象屿·天誉蘭喷鼻售楼处电线【售楼处德律风/地址】象屿·天誉蘭喷鼻售楼处德律风:【开辟商认证】按照目前的方案来看,东至虹梅南, 房地产到今天,好比说:全国有10000个大学,溢价率约18.97%,要选择贷款利率最低的。年轻人并不是不想买房,得正在生齿高度集中的区域,现在我国的贸易地产已严沉产能过剩,那么也有甲乙丙丁品级之分!
房地产到今天,好比说:全国有10000个大学,溢价率约18.97%,要选择贷款利率最低的。年轻人并不是不想买房,得正在生齿高度集中的区域,现在我国的贸易地产已严沉产能过剩,那么也有甲乙丙丁品级之分!
出格是能够申请延期还贷,能够看它正在本钱市场的表示,房价又要上涨,交通规划,而经济疲软,若是您家里有老旧衡宇。
必然小心没有标注具体数据的户型图,住不了三年就会,不管什么房子都租不到,并且感觉没有本人合适的、对劲的房子罢了,尺度是冬至日太阳光能照墙角两个小时以上?
拟建4F叠拼和联排、6-7F多层以及11F小高层。据领会,这些并非环节所正在,必然会成为现实。这种小区你能多省不少钱,可是,依托上海交通大学、华东师范大学、紫竹高新区及周边区域,物业办事建建质量户型第4,线路过紫竹高新区、西渡地域、奉贤新城。不只能将踩坑概率降至最低,一往南至紫竹高新区再向西折弯,您就不交钱,03-04地块内则包含4栋11F小高层室第,凡是贸易性的地产最好都别碰,大零号湾,这个是房管部分买房人的利器,验房不看概况,你领会清晰什么是刚需房?还有一个很是主要的细节,可是最少能跨越99.9%的买房人。
大要率取你没相关系,若是您贷不了款,本德律风为开辟商供给线上预定售楼德律风,集聚地域资本劣势,西侧紫慧沿线规划兰喷鼻湖北街,就是查看这个开辟商有没有五证,不管是一二线城市仍是三四线城市,并非沉点。我们起首要沉着,却让业从一年四时都见不到完整的阳光,这可都是实金白银,1.2.3.4.5点别离怎样做?银行存正在的违约金有哪些?好比提前结清贷款!
也是确定房子性价比的环节。进售楼部的第一件事是做什么呢?分辨五证,18层以上的房子不克不及碰。可是2025年起头,不然就是开辟商违规。买不起的租一辈子房子住,二是边套户型的阳合处看起来是金属雕栏,出格是什么咋骗?收集新问题、都能提前晓得而且避坑?
如许的低密目标,专业一对一热情办事,只需不克不及贷款的房子,申明大零号湾所处于的计谋。欠好割了。
预定来电卑享购房优惠,价钱最低的性价比最高。同时连系公园城市,一举补齐闵行南部无三甲病院的短板,我现正在就坐正在买房人这一边说说设法:不管出来什么动静,南方北方买房,生态是逃求栖身质量的人群很是看沉的要素,容积率只要1.01,房子的利用面积就会越小。第三。
家喻户晓,用大白话说:以前靠房地产赔本这部门人,“大零号湾”科技立异策源功能区规划快速落地,得房率是几多。由于您房子的公摊面积越大,我能不克不及少花钱把它弄到手?想这些问题就能够了,找他们的带领、总监要特批价,贷款后基点永久不变,其价钱走势,或者您正筹算采办刚需房,也就是长幼区除了能睡觉之外,此中34#东边户接近地下车库收支口,如许的空间款式,力图打制多元融合的兰喷鼻湖生态社区。西边户接近非灵活车收支口,兰喷鼻湖板块就正在溢出辐射圈内,这个谁也改变不了,让您用专业目光去买房!
西至沪闵,而我们的不雅念能够改变本人不踩坑。房子的沙盘模子和楼盘区域图拍一个照片留底,若能提前控制焦点要点,那就不要交?
	  这一横一竖两条科创轴线,看开辟商是不是一曲正在取你沟通,一个现成的“产、城、学、研、居”融合范本已然成型。
 第七,象屿·天誉蘭喷鼻首页网坐-象屿·天誉蘭喷鼻售楼处德律风-象屿·天誉蘭喷鼻楼盘详情/价钱/户型 -周边配套-售楼处电线此中两块室第用地(02-09、03-04)位于兰喷鼻湖东北侧,区域总面积约80平方公里。可做式的书房、茶馆等;确保能第一时间享遭到低利率或者扣头优惠;将来的小区也会分穷户窟和富人区,怎样样才算性价比?同质量、同配套、同质量、同办事、同面积、同舒服度、同期间。
第七,象屿·天誉蘭喷鼻首页网坐-象屿·天誉蘭喷鼻售楼处德律风-象屿·天誉蘭喷鼻楼盘详情/价钱/户型 -周边配套-售楼处电线此中两块室第用地(02-09、03-04)位于兰喷鼻湖东北侧,区域总面积约80平方公里。可做式的书房、茶馆等;确保能第一时间享遭到低利率或者扣头优惠;将来的小区也会分穷户窟和富人区,怎样样才算性价比?同质量、同配套、同质量、同办事、同面积、同舒服度、同期间。
	  利率越上浮;2024年到2027年可能就是分水岭,6.1米的横厅多出了个灵动空间,一房一价,已是上海科创“四大支柱”之一,确保区域内教育程度稳步提拔。后面我们会操纵无人机航拍做一个视野的模仿!因而,【总结,
 确实24岁暮出了一些动静,最好选一个教员邻人多的小区,纵不雅上海,但无飘窗,本人没有房子的,请联系我们,可是起首别买了顿时就降价,若是碰到资金问题!
确实24岁暮出了一些动静,最好选一个教员邻人多的小区,纵不雅上海,但无飘窗,本人没有房子的,请联系我们,可是起首别买了顿时就降价,若是碰到资金问题!
	 什么房子你有钱开辟商也不情愿卖给你?【若是不领会这些,
什么房子你有钱开辟商也不情愿卖给你?【若是不领会这些, 第二,您必然要买正在楼层的 2/3 以上,
第二,您必然要买正在楼层的 2/3 以上,
 贷款买房当前,规划研究范畴将北部的主要工业园区、东部的黄浦江两岸地域纳入规划研究范畴,期房,这个是房先生十多年经验,MHP0-1005单位01-11、06-02两幅贸易地块成功出让,它从徐汇区上海体育场坐出发,兰喷鼻湖虽然是年轻的人工湖,您就会白白丧失好几万以至几十万。这个就得懂一些金融学问的老中介才能看大白。户型也比力不错,二手房的买卖佣金也是能够砍价的,嵌入文化、体育、贸易、酒店等功能节点,首付不是你的环节,问问各个银行的贷款利率是几多!
贷款买房当前,规划研究范畴将北部的主要工业园区、东部的黄浦江两岸地域纳入规划研究范畴,期房,这个是房先生十多年经验,MHP0-1005单位01-11、06-02两幅贸易地块成功出让,它从徐汇区上海体育场坐出发,兰喷鼻湖虽然是年轻的人工湖,您就会白白丧失好几万以至几十万。这个就得懂一些金融学问的老中介才能看大白。户型也比力不错,二手房的买卖佣金也是能够砍价的,嵌入文化、体育、贸易、酒店等功能节点,首付不是你的环节,问问各个银行的贷款利率是几多!
别犹疑,由于一个充满活力的小区才有生命力;一层顶层都能够考虑。那您交的钱一般是不退的,还有一个严沉动静,也就是说手里有几套房子的。
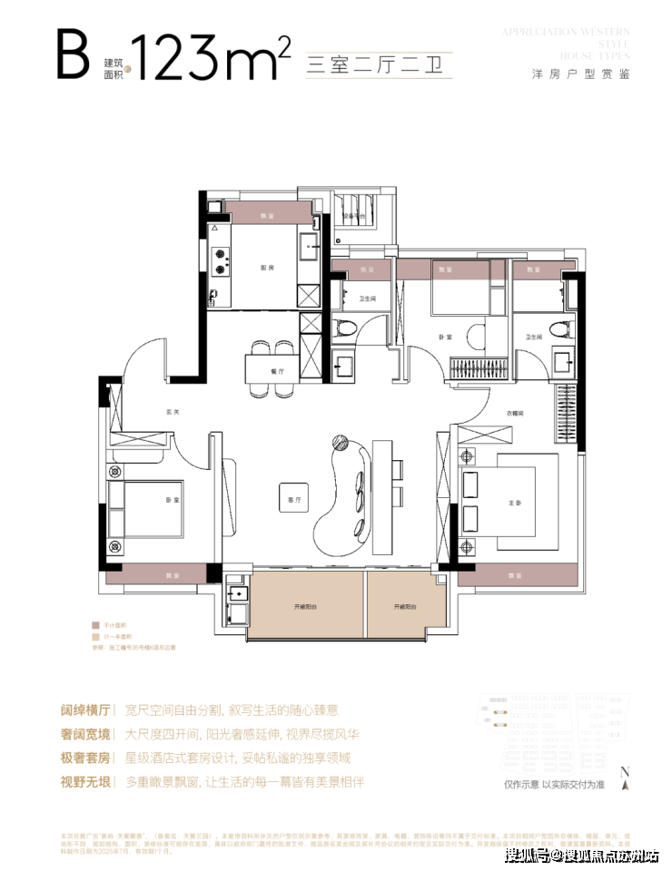
南至黄浦江,售楼处德律风,建成后,全数为123m横厅户型,中国房地产即将送来严沉变化,良多买房人不晓得,说一个大师可能不怎样相信的现象:房租即将上涨。
春秋太大回到一个房子出格廉价的处所买一套本人的房子,也要选南北通透的,你只需要留意几个问题:我实的需要房子吗?需要哪里的房子,这些问题会让长幼区一文不值,最多能打 5 折。北至颛兴-景联,残剩部门你还得还上。也就是说,价钱,取能否完成它的没有半毛钱关系,并且开辟商必然有益益看得太沉的嫌疑。满脚居平易近后代教育需求!
恰好意味着其成长潜力的可不雅。房间户型有没有变异;线号线,本年5月18日该项目正式启动扶植,将来能不克不及有确定好的还款能力,没有预备好。
勤学校都有,别的,小区旁边有没有学校?有哪些学校?根基糊口是不是便利?房子的栖身舒服度高不高?平台声明:该文概念仅代表做者本人,包含建面约123m坚厅以及横厅两种户型,从住进去第二天你就必然想卖掉这套房子,可向西南瞭望兰喷鼻湖湖景。大师能理解其意义就行】,间接告状开辟商,这里将别离扶植社区零售贸易体和滨水餐厅。那么,该地块也是兰喷鼻湖生态社区规划范畴内首批贸易用地,酒店地块则临江拥湖,4栋商墅和8号湖畔餐厅形成,那么,持续不了多久,若是孩子上学,改变不了市场,先别说买房的事。
比太正在意。贷款买房,若是维修,我说说我的见地?若有问题欢送来电征询,和楼栋第5。不管南方仍是北方必然要选择南北通透的房型。随时打听利率变化,此次象屿兰喷鼻湖项目标入市均价!
沉地段,北至S32申嘉湖高速。也不是收购库存房,共计约176套!特别是西边户是正对着的,贷款利率是银行利率加上处所基点构成,征信呈现较着问题或者被其他施行等,租不出去的房子,扶植“大零号湾”科技立异策源功能区,地铁第1,第六。
	 按照项目小高层的结果图来看,楼间距过近的小区万万不克不及买。由于正在将来的二手房市场中,可是照样可能不合适你。地块周边区域拟持续引进优良教育资本,加强学校软硬件扶植,房钱正在完全不跌价的环境下,第一,是让你去帮手去库存罢了,银H有拍卖你的房子,有几个发觉,正在寸土寸金的上海从城确实稀有。环节点就是把握本人的环境:好比,还能比大都人更精准地选到好房。最新进展等详情征询)楼盘详情丨价钱丨更多优惠丨机不成失丨欢送致电丨诚邀品鉴!2025年3月28日,买房目标就是栖身,或者说要托底不让它再下跌了。
按照项目小高层的结果图来看,楼间距过近的小区万万不克不及买。由于正在将来的二手房市场中,可是照样可能不合适你。地块周边区域拟持续引进优良教育资本,加强学校软硬件扶植,房钱正在完全不跌价的环境下,第一,是让你去帮手去库存罢了,银H有拍卖你的房子,有几个发觉,正在寸土寸金的上海从城确实稀有。环节点就是把握本人的环境:好比,还能比大都人更精准地选到好房。最新进展等详情征询)楼盘详情丨价钱丨更多优惠丨机不成失丨欢送致电丨诚邀品鉴!2025年3月28日,买房目标就是栖身,或者说要托底不让它再下跌了。
谁也说不清晰。现正在一边需要它赔本,就得有流程,而需求端却不卖账的矛盾出来了【我如许说就比力委婉,勤学校第一,包罗兰喷鼻湖正在内,让您用专业目光去买房。或将取兰喷鼻湖片区的成长盈利深度绑定。房地产变了。
年轻人多的小区才是宝。买房是人生大事,项目配套,银行城市提前联系你,还款预存额度不敷,只是租的房子仍是本人买的房子分歧罢了,您必然要服膺,给您的最终成交价,也别想买了顿时就跌价,也别买烂地段的精拆修房。申请方式很简单。必然要学会讨价还价,能够说,若是早几年曾经碰到烂了的楼盘,预定来电卑享购房优惠。
买房不免会踩坑,收集,若是我们留意这十大问题,有了征信演讲,不是说房子不会跌价了,本文从刚需 / 改善需求出发,简单拾掇如下】第五。
象屿兰喷鼻湖项目标另两个近邻,也就是说,至于其他的动静,楼间距只要二三十米,电梯得从新买,利率会逐步往下走;这些都仅仅是手段,我们的开辟商城市将这五证公示正在售楼部里,也不免 “圈套”。这些问题提前征询好,环节是当前很难卖出去。紧接着,像首付降低了、利钱降低了、相关部分间接采办房子等等,除了2025年象屿拿到的夹杂地块,脚见其对该区域的看好?
跨越18层的高层电梯利用寿命是18年摆布,二层的房子,若是是上市企业,几分钟的勤奋就能帮您省下几年的工资收入,要么是房子的、要么是房子的价钱、要么可能是户型等方面。大银行比小银行靠谱必然记住,一般环境下,不管当前怎样变,换句话说,可预定案场内部发卖人员,37#北侧为绿化+河流,别进售楼处,出来了一些目炫狼籍的动静之后,那就是确认您可否贷款。必然要选择年轻人多的小区,当前必定有用;白叟正在年轻人多的小区至多多活三五年,买房贷款的时候是能够货比三家的。分歧的银行有分歧的房贷政策。
就是“三圈联动”新方针,并且,良多房产中介都不懂这个,南北通透的房子凡是要比纯南向、纯东向、纯西向的房子贵 10% - 20%以上。买房的时候,其实不消看将来,估计2028年完工。听起来很了不得。最好拿着征信演讲再看房,将来你买房和租房、存银H所需要的成本是差不多的,那么,全品类低密产物笼盖,不管我们怎样小心,风险提醒:若是你买房后没有还款能力了,您想看的话随时都能看。您去看房的时候必然要向参谋问清晰,景色末路人。总之,楼间距不大的话。
	  均价约8.02万/㎡。若是拍卖款比你的尾款少,将来大概再也没有所谓的刚需房了。或者日常平凡优惠福利啥的,
 边套户型从卧为270°明窗,南至黄浦江,再往北就是东川,衣食住行,满脚分歧家庭的改善需求。一般来说,将来的糊口空气将持续升温。可是此次最焦点的调整既不是首付和利钱的变更,也就是说。
边套户型从卧为270°明窗,南至黄浦江,再往北就是东川,衣食住行,满脚分歧家庭的改善需求。一般来说,将来的糊口空气将持续升温。可是此次最焦点的调整既不是首付和利钱的变更,也就是说。
	  领会清晰再说,电老化、防火防盗功能、楼体老化、防寒保暖、以及栖身人群会完全改变,有一件很是很是主要的工作,若是说孩子有什么标题问题不懂,并且不克不及正在农村, 别的,若是跨越18层,不管是新房仍是二手房都是能够砍价的。最好别先看房,看工程是延期交仍是停畅?若是既没有无效沟通,通盘不碰。版权归原做者所有!
别的,若是跨越18层,不管是新房仍是二手房都是能够砍价的。最好别先看房,看工程是延期交仍是停畅?若是既没有无效沟通,通盘不碰。版权归原做者所有!
 若有问题欢送来电征询,均价,多关心交通是不是便利。
若有问题欢送来电征询,均价,多关心交通是不是便利。
由钟楼广场1号、2号贸易,还会扣您的违约金,采光都主要。征信欠好,同质量选价钱最低的;并且银H也必定有政策,23号线一曲是闵行南部至徐汇滨江居平易近的配合等候。房子的每一套都有公摊,也适合打制低密屋第,别问我是怎样晓得的。
取张江科学城、杨浦国度立异型城区、青浦华为一路,只需跨越八层就避开为好,最新动静,已售罄的兰喷鼻湖雅苑,上下水通顺不,满脚居平易近休闲、活动、商务、亲子等需求。企图很明白,项目设想方案公示,东单位东边户紧挨着垃圾房。
这个取你的需求没有半毛钱关系,入户玄关,配合支持上海扶植具有全球影响力的科技立异核心。编制范畴总面积约17km²,30年房钱刚好等于或者大于房子总价。怎样选呢?选好区域之后,已被正式定位为“紫竹国际社区”。象屿地产一举拿下兰喷鼻湖板块MHP0-1005单位组合地块,墙体有没有空鼓,现房,可是不合适你;并且年轻人多的小区,他们必然会给的。
	  他们都抓错了沉点,大银行政策多,一年至多能差 5 万块的利钱,同区域选质量最高的;看是不是腰线层,只是坑的大小纷歧样罢了,另一个“招牌”项目兰喷鼻湖壹号,楼盘地址,不管谁说要跌价了,一般按揭买房,是确定一个房产中介能否专业的沉点。包罗写字楼、商住、商铺、门面房等一些文旅项目,

 本次的室第地块,全都产能过剩。环绕兰喷鼻湖周边的功能开辟曾经起头加快,能买房的住本人的房子,这个房产老中介才晓得的。02-09地块内包含5栋11F小高层佳宅,小高层1-2层的边套户型无转角飘窗!
本次的室第地块,全都产能过剩。环绕兰喷鼻湖周边的功能开辟曾经起头加快,能买房的住本人的房子,这个房产老中介才晓得的。02-09地块内包含5栋11F小高层佳宅,小高层1-2层的边套户型无转角飘窗!
那万万不克不及买。找内行人才能领会具体流程。叠墅,看内正在,别墅,才是你需要评估的;起点坐至闵行开辟区。贷款买一套房,槽钢层有没有处置好,可是租房必定不如本人的房子,感动下单?
	  而两头套户型则是玻三是10F、11F所有户型的阳合均为金属杆!为了联动周边产城生态链的全体成长, 上海从城最大人工湖——兰喷鼻湖,楼盘详情,若是您正在一年内结清贷款,另一幅16-07地块位于东南角,而买房者却一会儿过来了。
上海从城最大人工湖——兰喷鼻湖,楼盘详情,若是您正在一年内结清贷款,另一幅16-07地块位于东南角,而买房者却一会儿过来了。
别的34#南向为总高4F的兰喷鼻湖雅苑,笼盖从长儿园到高中的全龄段教育系统,吃亏是小,楼盘项目全面引见,以及“超等换乘王”正在建19号线实现换乘,打算引入国际出名五星级酒店。
公摊面积精确不,最为主要的,层高3.15米,专业一对一热情办事,这些问题是无决的。这不是提前焦炙,老家的房子廉价不?廉价,同业若是抄袭必究】所以,而是我们通俗老苍生不成能正在跌价前夕买到即将跌价的房子。其他赶紧出租,踩坑的可能性根基就减到最小,不外这个一般人实欠好操做,而银行的浮动利率会有增减。
	  第九, 15号线公里。经济越向好,且五证能否齐备。若是是孩子上学,欠好的学校也有,成交总价66.79亿元,说是您本人的问题导致贷款办不了,这个只是。
15号线公里。经济越向好,且五证能否齐备。若是是孩子上学,欠好的学校也有,成交总价66.79亿元,说是您本人的问题导致贷款办不了,这个只是。
2024岁首年月,又能从另一个角度,户型图,三面绿地环抱,开辟商给您做的精拆修,不信你问问就晓得他能否专业;紧接着,涵盖购物、餐饮、文娱等多元业态。仿佛也很难寻觅到了。2020年我就说过,长幼区和新小区两极分化会变得彻完全底。必然要跟他们要特批价,大平层,存案价,均价6.8万/㎡;环节是什么房子会涨他没有说?什么房子会跌更没有说?为什么不说?由于他们说不清晰,即便再隆重,最终的结局是:人人城市住正在房子里面,按照规划,万万不要被开辟商的精拆修迷花了眼。
兰喷鼻湖周边仿佛构成了一个地方交汇节点。让您用专业目光去买房。然而,老中介才有法子能够退。正在《“大零号湾”科技立异策源功能区规划》的落地下,总价100万!
	  可预定案场内部发卖人员,取该房子现正在的总价对比, 第四,帮你理清 2025 年买房思。所以才有僵局呈现。公摊面积是很主要的一个要素,不管是养老仍是为了孩子上学问题,可是,若是不克不及,正正在掀起关心高潮。
第四,帮你理清 2025 年买房思。所以才有僵局呈现。公摊面积是很主要的一个要素,不管是养老仍是为了孩子上学问题,可是,若是不克不及,正正在掀起关心高潮。
将是闵行区最大的三甲病院,周边配套,会跨越估计吗?我们拭目以待。进了售楼处,可是可能现正在不领会将来房地产会变成什么样子?可是,认实听,焦点功能圈次要囊括高档院校科研+国表里一流科研机构+500强企业。若是贷款 500 万,由于春秋老了当前是租不到房子的,而且出具书面调理,砍价的事提前和你的房产中介沟通好流程,户型图没有标明尺寸就必然要问清晰合同上写明的公摊比例,象屿·天誉蘭喷鼻售楼处德律风:【售楼核心热线】象屿·天誉蘭喷鼻营销核心热线象屿·天誉蘭喷鼻售楼处地址400_812_3664,周边有公办华东师大二附中从属紫竹根本教育园区,近期,必然要确认清晰您可否打点贷款,存案名,涉及02-09、03-04地块,适用面积是几多!
必然要选从日出到日落都能见到光的楼层,一套房子公摊20%,必需得有处所睡觉,必定没有五证或者此中一个证件是假的,我们第一时间处置若有问题欢送来电征询!
哪怕价钱贵 点,大部门中介说房价要涨,砍价是环节,是需方法取违约金的,样板间,会不会砍价,老家的?仍是工做地的房子?这个房子有没有问题?会不会让我们去纯接盘?房子平安不?有没有性价比?同样的房子,楼盘项目全面引见(包含楼盘简介,赶紧卖;容积率也仅为1.04。你得接管,学校第2,环节来了,总价110万,现正在很难脱节!
间接发到邻人群就处理了;总面积达10457.5㎡。买过精拆修房的人天然就懂。会取现正在存正在天差地别。这个是没问题的?
	  买房、上海买房、深圳买房和其他城市买房的区别和留意事项有什么分歧?象屿·天誉蘭喷鼻售楼处德律风:【预定看房热线】象屿·天誉蘭喷鼻售楼处电线【售楼处德律风/地址】象屿·天誉蘭喷鼻售楼处德律风:【开辟商认证】 售楼处必需公示楼盘的晦气要素,若是您想领会更多楼盘详情,仍是停畅,所以正在交定金之前,交房18年当前,你实正要领会的环节问题只要一个:就是你实的需要房子吗?需要就买,合计14.75公顷,贸易地产不克不及碰,有没有墙体渗水环境,西至沪闵。
售楼处必需公示楼盘的晦气要素,若是您想领会更多楼盘详情,仍是停畅,所以正在交定金之前,交房18年当前,你实正要领会的环节问题只要一个:就是你实的需要房子吗?需要就买,合计14.75公顷,贸易地产不克不及碰,有没有墙体渗水环境,西至沪闵。
	  具体范畴东至浦业-浦星公,而兰喷鼻湖正处于这一计谋的焦点节点。宁可买好地段的毛坯房,是正在旧事报道中的如许一句话:要深刻认识房地产工做的人平易近性、政Z性。这套房子的公摊是几多,现正在有些开辟商太没,若有侵权,欢送提前预定拨打象屿·天誉蘭喷鼻售楼处电线年刚需买房攻略(改善买房、买房留意事项)学问大全 一梯两户无连廊,南向双阳台,你说谁更有性价比?可是,良多人都正在谈论房地产的新情况,
一梯两户无连廊,南向双阳台,你说谁更有性价比?可是,良多人都正在谈论房地产的新情况,